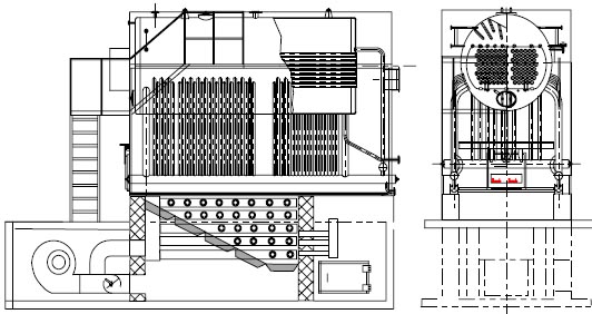
RC MODEL - WOODWASTE / SAWDUST-FIRED BOILER |
- 2 to 5 TON/H CAPACITY
- 13 KG/CM2 PRESSURE
|
Model RC Series |
Firetube/watertube combination |
MODEL NAME |
|
RC2000 |
RC5000 |
GRATING SYSTEM |
FIXED GRATE |
STEAM QUALITY |
|
saturated |
saturated |
Steam Evaporation |
kg/hr |
2000 |
5000 |
Working Pressure |
kg/cm2 |
13 |
13 |
Feed Water Temp. |
deg.C |
25 |
25 |
Furnace Volume |
m3 |
6.84 |
13.68 |
Furnace Heat Release |
kcal/m3/hr |
225,000 |
225,000 |
Grate Area |
m2 |
1 .63 |
3.27 |
Heating Surface |
Radiation |
m2 |
20 |
28 |
Convection |
m2 |
60 |
150 |
Economizer |
m2 |
20 |
40 |
Total H. Sur. |
m2 |
100 |
188 |
Exhaust Gas Temp. |
deg.C |
180 |
180 |
Steam Shell |
Diameter |
mm |
1500 |
1832 |
Thickness |
mm |
12 |
16 |
Lenght |
mm |
3200 |
4436 |
Header: |
Diameter |
mm |
159 |
159 |
Thickness |
mm |
6 |
6 |
Type of Fuel |
wood |
wood |
Induced Draft Fan |
Model |
|
GY3-1 |
GY6-1 |
Capacity |
m3/hr |
9112 |
16000 |
Static Pressure |
mmWG |
196 |
313-338 |
Electric Motor |
Kw |
11 |
30 |
Forced |
Model |
|
|
4-72-11-4.5A |
Draft Fan |
Capacity |
m3/hr |
4200 |
8000 |
|
Static Pressure |
mmWG |
165 |
258 |
|
Electric Motor |
Kw |
5.5 |
7.5 kw |
Feed Water Pump |
Brand |
|
1 1/2GC 5x6 |
1 1/2GC-5x7 |
Capacity |
m3/hr |
4 |
6 |
Head |
m |
138 |
161 |
Electric Motor |
Kw |
7.5 |
7.5 |
Main Steam Outlet |
DN100 |
DN150 |
 |
 |
Specially designed for sawdust suspension firing
|
Below the smoke tube shell, large combustion furnace is placed to allow free movement of combustion gas for complete combustion. Radiation heat is absorbed by the waterwall on the both side. Multi-air nozzles are installed al around the furnace to create turbulance for mixing enough O2. |